Ugrás a tartalomra

középkori Óbuda

leguan küldte be August 5, 2014 időpontban

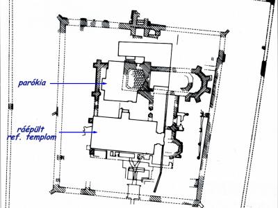
A középkori Óbuda területének első határleírását II. Endre 1212. évi oklevele tartalmazza. Az itteni káptalan (prépostság) és a királyi (később királynéi) vár tulajdoni viszályainak megszűntetésére 1355-ben Nagy Lajos király pápai hozzájárulással felosztotta közöttük Óbuda bel- és külterületét. Ennek határvonala különösnek tűnhet, azonban ésszerűen biztosítja a felek számára a három fő hasznosítható terület: a Duna-part, a hegyvidéki erdők és a nagy (Bécsi) országút menti szőlők közel azonos birtoklását. A határkijelölés hegyek felé eső pontjainak neve már régen nem használt, azonban későbbi okiratokból, peres anyagokból jól azonosítható. A városközpontban a határ kb. a mai Árpád-hídi hídfő vonalában húzódott, ettől északra a káptalan, délre a király építményei voltak. A megosztás során a prépost és a káptalan hozzájárultak ahhoz, hogy a királynéi városrészben is működhessen plébániatemplom, az ott lévő Margit-kápolna (a jelenlegi barokk óbudai plébániatemplom helyén) ilyen rangra emelésével.

Óbuda középkori jelentősebb egyházi és világi épületei nagyrészt a rómaikori nagyobb épületek (amfiteátrum, aquaeductus, nagy fürdő, légiós-tábor, helytartói palota stb.) köveinek felhasználásával, olykor alapjaira épültek. A török hódoltság évtizedeiben az épületeket elhagyták, pusztulásnak indultak. Az Oszmán Birodalom és a Habsburg monarchia közötti háborúskodás eseményei egész Európa érdeklődésére számot tartottak, így Budáról, Pestről és mellettük részben Óbudáról (Alt Ofen, Buda Vecchia) számos romantikusan túlzó, de akár hadmérnöki pontosságú metszet is készült, amelyeken jól láthatóak a megmaradt romok. Majd Buda visszafoglalását követően ezeket a romos épületeket a megindult építkezésekhez  (Zichy-kastély, plébánia-templom, református templom, nagyobb polgárházak építése és kisebbek alapozása) használták kőbányaként, az 1700-as években a járószintig elbontva.  Így csak alapfalaik maradtak meg, hacsak nem építkeztek rájuk.

Fehéregyháza templom és kolostor.
A Bécsi út menti Victoria Téglagyár építkezésénél 1869-ben 39,5x11,5 m méretű gótikus templom és északi oldalán kolostor maradványaira találtak. A feltáró ásatások alapján 1877-ben Zsigmondy Gusztáv készített alaprajzot. 1884-ben ismét nagyszámú faragott kő került napvilágra, így újabb feltárás következett, a kolostor néhol méternyi falainak, rajtuk vakolatnak és festésnek, valamint az oroszlános vörösmárvány sírkőtöredéknek a megtalálásával.   A templomtól kb. 300 méternyire, a Frankl-malom forrásától (Rádl-patak) nyugatra 1882-ben egy másik kis kápolnát tártak fel. Árpád sírjának az Anonymus  gesztája szerinti leírása és az 1355-ös határjáró oklevél alapján ezt a templomot és kolostort  valószínűsítették  Fehéregyházaként, ahova a korábban már meglévő templom kiszolgálására Mátyás király telepítette  le a pálosokat, kolostoruk építéséhez – pápai engedéllyel – a már romos Péter templom köveit felhasználva. A sorozatos feltárásokkal felváltva történtek a téglagyár bővítésének építkezései (pl.1893-ban), majd a teljes terep 2,5 méterrel való mélyítése (1910-ben). Ennek következtében  mára az építményekből semmi sem maradt.

Ferences templom és kolostor. Az óbudai lakótelep építése során 1973-74-ben találták meg. Az újkori építkezések által  nagyrészt elbontott, illetve a lakótelepi építkezések miatt a kutatási területről kieső alapfalakon kívüli részeket tudták csak feltárni. A kisméretű épület (szentélye 7,5x7,5 m) első említése 1298-ból való. Jelentősége 1444 után nőtt meg, hiszen csak ez maradt meg a budavári, pesti, margitszigeti kolostorok obszervánssá válása után a marianus ferencesek kezén.  Megmaradt és feltárható (rómaikori falakat is felhasználó) falain kívül a hajó és a szentély közepén egy-egy sírkamrát is találtak. ----- A középkori város határainak meghatározásában jelentős szerepe van az épületek helyének, ugyanis a koldulórendek csak a város szélén telepedhettek, így ismerhetjük  Óbuda városának északnyugati határpontját.

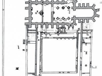
Péter és Mária prépostsági templomok. Az óbudai káptalan számára a XI. században, Szt. László király alatt a Péternek szentelt prépostsági templom épült. A tatárjárás során megrongálódott, nem építették újjá, bontása 1483 körül kezdődhetett a Fehéregyháza melletti pálos kolostor építéséhez. Teljes romlása a török hódoltság idején következett be, falainak kőanyagát a budai török építkezéseknél használták fel.  Már alapfalai sem rekonstruálhatóak egyértelműen.  Szorosan a Péter templom mellett, tőle délre 1348-49-ben építtette Nagy Lajos király a tekintélyes méretű (70x20 méter) Mária templomot. A háromhajós templom főhajóját a nyolcszög öt oldalával határolt szentély, a két keskeny mellékhajót a nyolcszög három oldalával határolt szentély zárta. A később hozzáépített nyugati homlokzati torony a díszkapu előcsarnokául is szolgált. Mátyás korában még Ranzanus olasz püspök elragadtatással írt a hatalmas templomról. A gótikus templom maradványaira először 1935-ben, a Fő téri csatornázási munkáknál találtak. 1956-57-ben, majd 1973-84 között folytatódott  a feltárás, a Fő tér szintje alatt 120-150 cm mélységben és a Szentlélek téri házak pincéjében is,  és  már rekonstruálható volt a templom teljes alaprajza.

Királyi/királynéi vár. Jellegzetes XII. századbeli kastély típusú vár, amelyet  II. András 1210 körül kezdett el építtetni, a tatárjárás során valószínűleg erősen megsérült, és csak Károly Róbert felesége,  (Piast) Erzsébet idején épült újjá,  aki ezután 1343-1380 között – mint  fia, Nagy Lajos király mellett a politikai és kulturális életben aktív anyakirálynő – birtokolta a várat és jövedelmét. Kettős fallal védett épülettömbjének észak felé volt a bejárati homlokzata, az előcsarnok  3 méter vastag alapfalából ítélve, toronnyal. A vár előtt vezetett el a királynéi és préposti városrészt elválasztó út. Külső megjelenését nagy valószínűséggel az óbudai pecsétnyomó is mutatja. ---- Feltárása 1908-, 1923-, 1934-35-,  1949-51-ben, végül az 1970-es évek elején történt.

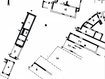
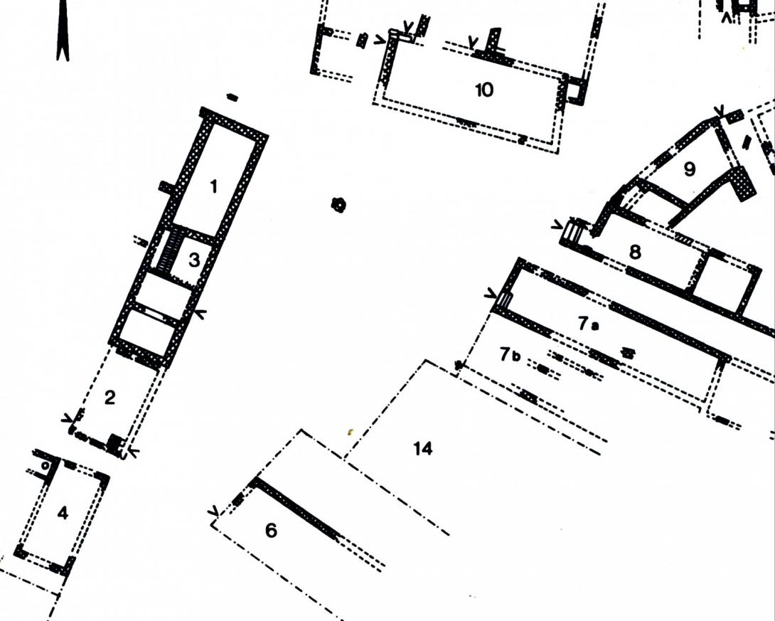
Óbudai piactér házai. A középkori Óbuda kereskedelmi-piaci súlyát számos oklevél bizonyítja. Kedvező helye, ahol találkoztak  a dunai víziút, a megyeri rév, Esztergom, Buda és a környező községek felől vezető utak, erre alkalmassá tette. A kereskedelmet szolgáló  piactér nem csak Óbuda vásártere, hanem centruma is volt, több polgár mellett a káptalan és az apácák házával. Ezek közül többnek sikerült alapfalait feltárni, a klarisszák szolgálatában álló Ferenc deák házának pedig elkészült rekonstrukciója.

Klarissza kolostor és templom. Erzsébet királyné 1343-50 között építtette. Az  apácák ettől kezdve a királyné és a káptalan  mellett részesedtek Óbuda birtoklásában, így a  kolostor 1541-ig pompában és gazdagságban egyre növekedett, aminek csak a török megszállás vetett véget. Díszes berendezését szemlélteti két fennmaradt értéke, a New-Yorki Metropolitan Múzeumban  őrzött házioltár és a piliscsabai plébániatemplomban látható Madonna faszobor. A templom 65x20 m méretű,  mindhárom hajója a nyolcszög három oldalával záródott, a templomtér 20×20 m-es nyugati szakasza két szintre volt osztva, a felsőn volt az apácák kórusa, csillagboltozatát egyetlen központi pillér tartotta. A templomtól délre fekvő kolostor négyszögletes udvarát körülvevő kerengő és a templom közötti kis különálló épületet feltételezik annak a Corpus Christi kápolnának, amelybe temették 1380-ban az alapító Erzsébet királynét (hamvait azután a török elől Pozsonyba menekítették a kincsekkel együtt). Buda visszafoglalása után a földesúr Zichy család nem engedte vissza az apácákat, az épületek falait lebontották,  kőanyagát, faragott köveit évtizedeken át hordták középületek, templomok építésére, a budai vár falainak helyreállítására.   ---- A területen 1884-ben vörös márvány sírkődarabok, 1971-ben alapfalrészek kerültek elő, a feltáró ásatás 1973-75 között történt.

Itt találhatóak az Óbuda helyzetét igazoló metszetek.

Itt pedig Óbuda határainak bemutatása

Cím

Fő tér
Magyarország

Hosszúsági és széleségi fokok

Hozzászólások

Pajzsvivo

2014. 10. 20., h – 17:50

Nagyon jól tetted, hogy linkelted nekem, így nem kellett keresgélnem, köszi. Én azt gondolom, hogy mivel ilyen komoly támáról írsz mint Óbuda egyházi és királyi intézményei kell, hogy legyen neked okleveles helymeghatározó dokumentumod ezekről az állításokról. Ugye jól gondolom? Mert bizony a ma Óbudának ismert terület az csak Krúdy Óbudája, az a terület egy homoksziget volt. Tehát nem ott volt a középkori Óbudánk! Nézzük Óbuda látképeit! Aki ezekre az északi nézetű hadmérnöki rajzokra napjainkban történészként azt állítja, hogy "idealizáltak-készítőik nem jártak nálunk-és ugyanakkor csak nagyzolni akartak" az hazudik és készakarva, a dogmákat mentve próbál félretájékoztatni! Ugyanakkor egyes hazug történészeink azt állítják, hogy a hegyek tetején ábrázolt Vetus Buda-Alt Ofen-azaz Óbuda, az a mai lapos területet ábrázolja. A képeket készítő szakemberek-hadmérnöki írók és rajzolók, más városaink tekintetében egyetlen alkalommal sem tévedtek, vagy fantáziáltak!Sem Esztergom, sem Visegrád, Veszprém és még sorolhatnám... Csak Óbudával kapcsolatban tévedett mindegyikük ugye??? Ugyanakkor ezeket a képeket és nézőpontjukat a mai modern műholdas technikával pontosan meg tudjuk határozni. Mégpedig olyannyira, hogy minden tekintetben megfelel a látott képnek és földrajzi környezetnek! Azért nem engedte vissza a klarisszákat Zichy, nehogy azok jogos tulajdonukat vissza követeljék, mert akkor azok köveit nem tudta volna a kapzsi földesúr jó áron értékesíteni. Óbuda romjait valójában szervezetten széthordták és eladták, azonban ez a város a Csillaghegy tetején létezett!!!

leguan

2014. 10. 20., h – 18:55

Ide is csak azt írom, amit a Fehéregyháza szócikkhez írtam. Ha hasonló épületeket tártál fel, mint amit eddig a régészek a mai Óbuda területén már feltártak, akkor ennek alapján illetékes leszel a velük való vitatkozásban. De ezt a vitát tudományos fórumokon kell megtenned, és velük.

 

Pajzsvivo

2014. 11. 17., h – 23:41

A helyzet az, hogy aki állít valamit annak kell bizonyítani. Tehát:  1. igazolni azt, hogy az 1355-ben készült határjárás a ma ismert Óbuda helyrajzával azonos! 2. bármivel igazolni, hogy a római kőrcirkusz azonos Kurszán fejedelem várával! 3. közölni annak az oklevélnek a leírását és forrását amely az írja, hogy a római amfiteátrum és a Flórián tér között létezett a klarissza kolostor! 4. helymeghatározó oklevéllel igazolni, hogy a Kálvin közben talált romok azonosak a királynék várával! 5. bármivel igazolni, hogy Óbuda látképei azonosak a ma Óbudaként ismert területtel!!! A szamárcsapásról nehéz letérni? Milyen alapon állítasz valótlanságokat fővárosunk múltjáról, miért akarod megtéveszteni az érdeklődő olvasókat?! A mai Óbudának ismert terület egy vízzel-mocsárral határolt homoksziget! Nem tűnt még fel? http://osbuda.blogspot.hu/

leguan

2014. 11. 18., k – 00:29

Egészen biztosan nem fogok valamennyi tévedéseddel itt tételesen vitatkozgatva egyértelmű bizonyítékokat sorolni. Ez a portál nem erre való. Csak ismétlem: ha bizonyítékokra van szükséged, tanulmányozd a régészeti, történelemtudományi, levéltári szakirodalmat. És ha vitád van bármelyikkel, akkor szakmai fórumokon vitatkozz! És ha ezeken nem hagynak szóhoz jutni, akkor gondolkodj el azon, hogy miért. ---- És akkor itt is fejezzük be!

Pajzsvivo

2014. 11. 23., v – 01:35

Én itt ezen az oldalon megjelent íráshoz szólok hozzá, ami téves információk közlésével becsapja-félrevezeti az érdeklődő olvasókat és valótlan dolgokat állít! Hol vannak a helymeghatározó oklevelek Óbuda királynéi város földrajzi területéről és objektumairól!? Ha te az eddigi történészi dogmákra hivatkozol akkor közöld azoknak a megcáfolhatatlan okleveles bizonyitékait, látképeket a városról és épületeiről a 16 századból. 1.Kurszán vár 2. Királynéi vár-klarisszák 3. Óbuda prépostság 4. Magna Via

leguan

2015. 02. 07., szo – 13:11

Pajzsvivő, a nagybetűvel írás az interneten ordítás. És attól, hogy a korabeli olvasók romantika iránti igényét kielégítő, romantikusan eltúlzó bulvár-rajzok alá odaordítasz valamit, az attól még nem lesz igazság. Sőt attól sem, hogy a rajzokon lévő, tűzhányókat formázó hegyekre (amelyek természetesen soha sem voltak sem Óbudán, sem környékén) odabiggyeszted ostobaságaidat.

leguan

2015. 02. 08., v – 11:20

És további ostobaságok megelőzése érdekében idézem I. (Nagy) Lajos király 1355-ös határkijelölő oklevelének kezdetét. (A meta/méta a szövegben határkijelölő pontot jelent.)

"Prima meta incipit a parte orientali, ultra partem Danubii ab angulo claustri Sanctae Clarae, de insula leporum, et sic procedendo, et transeundo Danubium versus partem occidentalem, venit ad rippam ipsius Danubii ad duas metas lapideas, quarum una separat Budae veteri, et alia villae Sancti Jacobi Apostoli; et ab inde ad eandem partem modicum procedendo, venit ad quendam lapidem rotundum in superiori parte dictae Ecclesiae S. Jacobi situm; iuxta viam per quam itur de nova Buda ad veterem Budam,……"

"Az első méta  kezdődik keleten, a Duna túlsó részén, a Nyulak szigetén lévő Szent Klára kolostor sarkánál, honnan nyugati irányban és átkelve a Dunán, e Duna partján két kőmétához érkezik, melyeknek egyike Ó-Budának, másika Szent-Jakabfalvának képezi határát; és innét ugyanazon irányban keveset haladva érkezik egy kerek kőhöz, mely a nevezett Szent Jakab-templomnak felső részén van; azon út mellett, melyen Új-Budáról  Ó-Budára járnak……"

Azt pontosan tudjuk, hogy a Nyulak szigetén említett, Szent Klárának szentelt kolostor a ferenceseké volt, hatalmas romjai ma is láthatóak  a Margitszigeten, a Szépvölgyi út dunai lefutásával átellenben. És azt is pontosan tudjuk, hogy a mai Újlaki templom helyén volt a középkorban az oklevélben említett Szent-Jakabfalva.

Ettől kezdve nem lehet vita tárgya, hogy hol is volt Óbuda. A metalis határleírás további pontjai e szócikk elején lévő térképen láthatóak.

Pajzsvivo

2016. 09. 21., sze – 12:14

Sajnos a hivatalos ostobaságokat te terjeszted, és borzalom amiket itt összehordasz! Írtam már neked, hogy tedd meg azt, amit a történészek elfelejtettek, igazold oklevelekkel, hogy Aquincumban volt Óbuda városa. A látképek, mint ezen az oldalon is látható, ugyanis hegytetőn ábrázolják Óbuda városát, a Dillich hadmérnök képei is borítják a hazug történész dogmát. A hegyek léteznek és azt nem lehet a Zichy főtérre hazudni! A Boldogságos Szűz szigete nem a mai Margitsziget! Mit nem tudsz felfogni azon, hogy teljesen más vízrajzi helyzet létezett még a kozépkorban!? Ezzel a határjárásokkal meg máris megbuktál na linkeld be szépen az állítólagos Szépvölgyi úti Sarlos Boldogasszony plébániatemplom alatti Szent Jakab templomának a feltárását !

Pajzsvivo

2016. 09. 26., h – 22:22

Akárki is vagy te leguán, fejezd be az emberek további bolondítását! Óbuda városának apró kis darabkáját sem tárták még fel hivatalosan.

http://torteneszdogmak.blogspot.co.at/2016/09/zichyek-es-hamis-obudai-hatarjarasok.html

Szeretném megkérdezni, hogy ki engedélyezte és ellenőrizte Pajzsvivo képeit és állításait, amelyek szöges ellentétben állnak leguan hiteles beszámolójával szemben? A Pajzsvivo által feltett korabeli térképábrázolások hamisak, és azt a látszatot keltik, mintha semmi sem lenne igaz, amit Óbuda középkori történelméről tudunk.